4 6

2/31 Creer Street, Randwick

Apartment
3
1
1
For Lease
DEPOSIT PAID pw
Bond: $4600
Availability: 18th December 2025

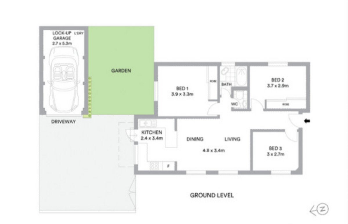
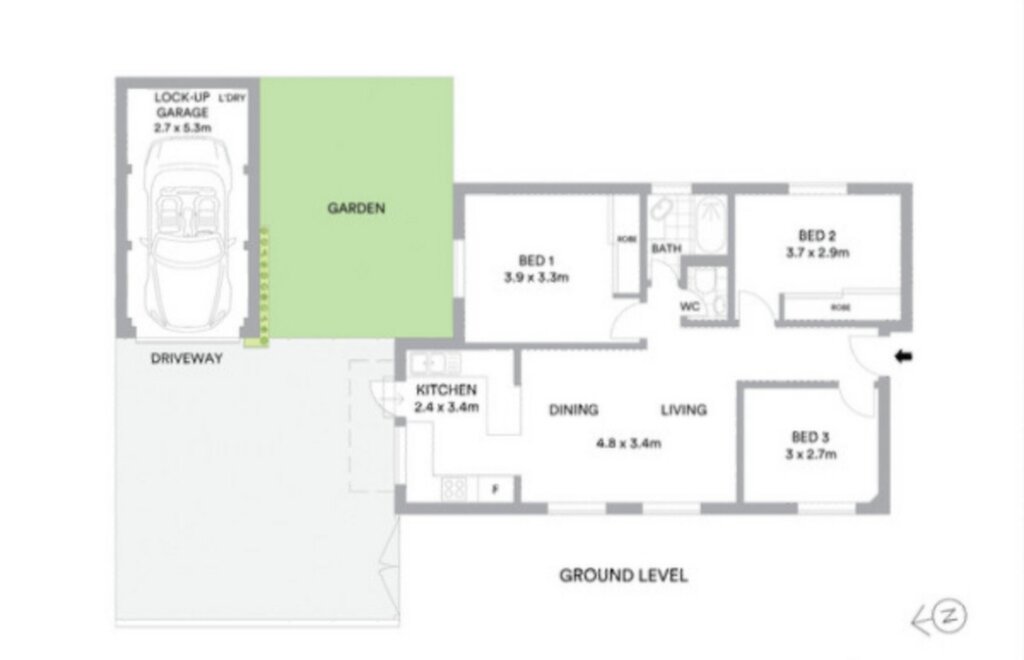
DEPOSIT PAID | Well-proportioned sun filled 3 bedroom apartment positioned in sought after cul-de-sac

Basking in natural sunlight this semi-sized 3 bedroom apartment is perfectly located at the end of a quiet cul-de-sac, only a short stroll to the vibrant cafe/restaurant hub & Ritz cinema complex at 'The Spot', this delightful contemporary apartment is flooded with sunlight from its favorable northerly aspect and presents an easy low maintenance lifestyle with direct common garden access.

Built-in wardrobes Modern kitchen with dishwasher Modern bathroom - 3 large bedrooms Open plan lounge & dining Polished timber floors Internal laundry Direct access to common garden Lock up garage

All information contained therein is gathered from relevant third party sources. We cannot guarantee or give any warranty about the information provided interested parties must rely solely on their own enquiries.

Property Information

  • Land area approx 443sqm

Property Features

  • Garages 1
  • Floorboards
  • Close to Transport
  • Close to Shops
  • Close to Schools
  • Built In Wardrobes

Get to know Randwick

A largely residential suburb adjoining the famous racecourse and Centennial Park, Randwick offers city living with access to wide open spaces. Just 15 minutes drive to the city and five minutes drive to the beach, Randwick is a fantastic spot close enough to the action, but not in the thick of it.

Read more about Randwick

Property Enquiry

Share This Property

×
< >
×

Inspection Times

Please contact Cemil Yenice to arrange an appointment.
×
Property Enquiry